top of page

House of Assembly
05
2025 Amsterdam
Housing + Public
Design of high income housing project in Amsterdam. Exploring the interaction with the public & residents in the ground world and programs around the units.

House of Assembly is a high-income residential project that is connected by different public programs (school, auditorium, sky lounge, commercial stores, gym, etc).
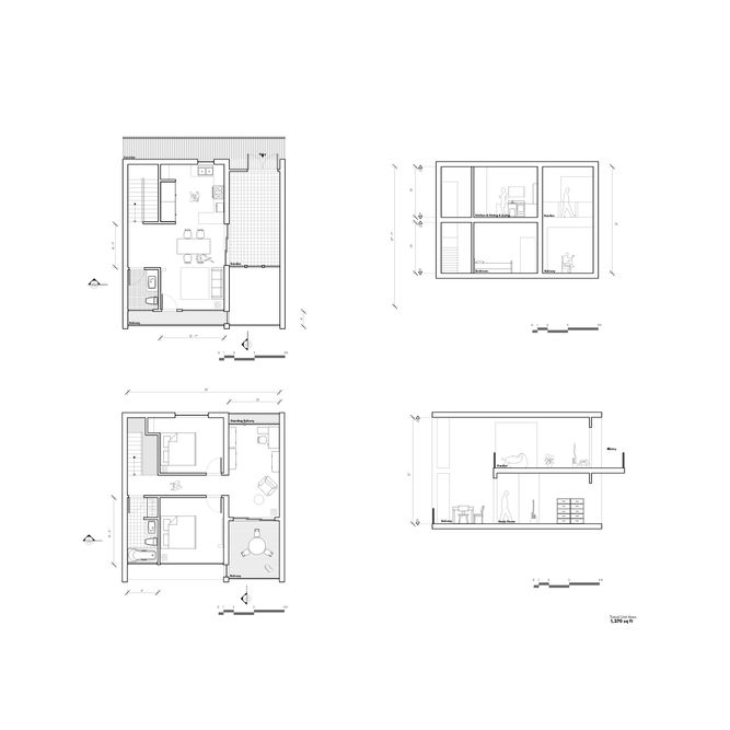
Each unit features single corridor with double story floor level and a balcony that either faces the park or the courtyard in the center.
Above the ground level, programs such as, rooftop lounge and swimming pool, gym and school. On the ground, it has access to public auditorium, movie theater, and commercial stores. These programs are interlocked with units allowing easier access for the residents without going on the road.
bottom of page













